Stainless Steel Lamp Post CCTV Column
Design Specification
- Excellent stability characteristics for minimal camera movement.
- A most desirable column where aesthetics are of prime importance. This version of our LPS camera pole is entirely made out of stainless steel.
- Suitable for all public access areas, and particularly seaside and architectural locations.
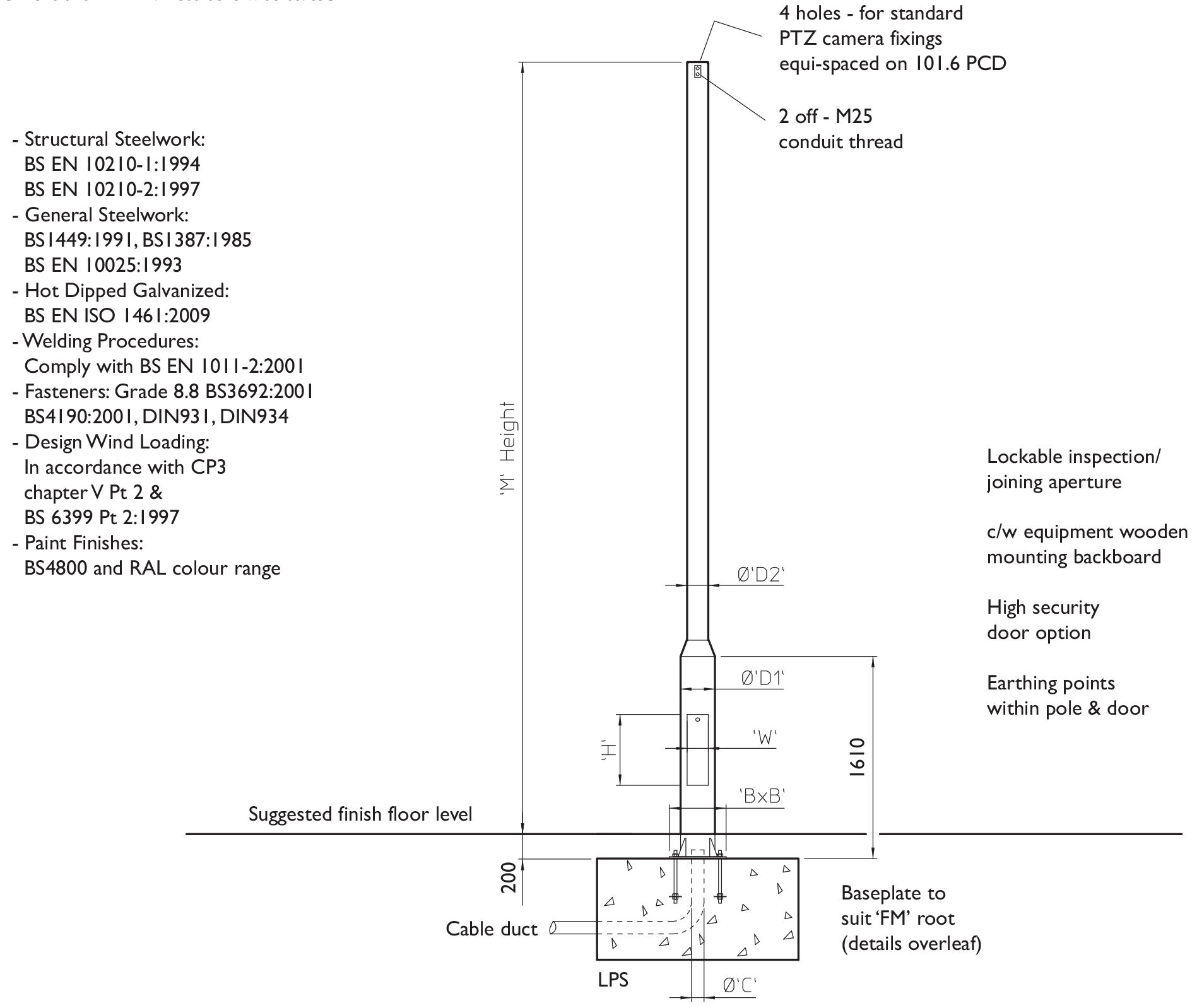
- Flange mounted FM type root.
- Heavy duty versions available.
- Pocket type roots available for restricted foundation locations.
- Totally concealed cable management facility.
- Custom and bespoke versions tailored to the customer's requirements.
General Specification
- Standard pan and tilt fixing of 101.6 PCD.
- Inspection / jointing aperture with backboards as standard feature.
- Compatible with WEC adaptors, accessories and anti climbs.
- Heavy duty version loadings up to 25 kg.
- Variety of standard heights up to 10 metres*
In stock
Only %1 left
£0.00
+ VAT
SKU
Stainless Steel Lamp Post CCTV Column


